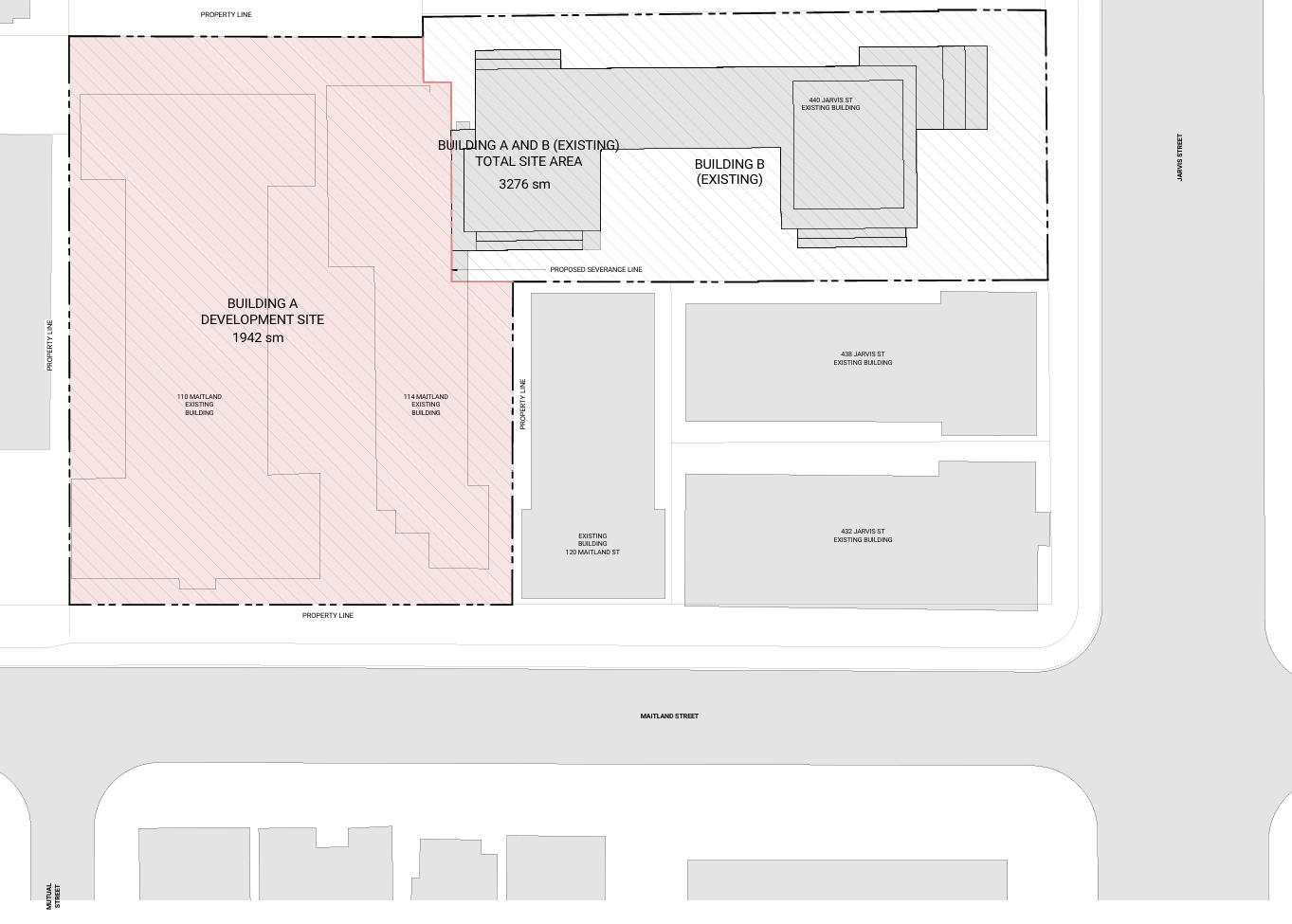
A 57-storey tower proposed for 110/114 Maitland in Church-Wellesley with zero parking and 579 units. The developer is calculating density using 440 Jarvis even though they're only building on Maitland. Community and Councillor Moise clash over process.
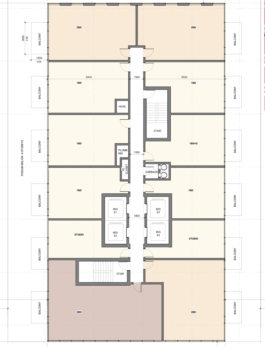
The proposal calls for a 57-storey residential building at 110/114 Maitland Street, with a low-rise podium set back on the rear side of the building. The tower would contain 579 residential units, 2,262 m² of non-residential ground floor space (most of which will house the Garry Hurvitz Centre for Community Mental Health, a Sick Kids subsidiary), zero residential parking spaces, 9 surface visitor parking spots, and 663 bicycle parking spaces. The developer is Minto, with Diamond Schmitt as the architect. The existing Sick Kids building at 440 Jarvis will be untouched, though it's included in the lot's density calculations even though construction will only occur on the 110 and 114 Maitland parcels. The proposal replaces 36 vacant rental units. The developer has not yet decided whether the new units will be condos or market rentals. The site is within a Major Transit Station Area (MTSA) adjacent to Wellesley station on Line 1.
This proposal is another example of Toronto using MTSAs as a blank cheque for height without corresponding infrastructure investment. Yes, it's near a subway station, but Line 1 is already overloaded and unreliable. We're not expanding subway capacity in this area, so packing more people onto an at-capacity system without any plan to address that is irresponsible.
The zero parking policy is justified by the site's "great cycling network." I laughed out loud when the developer said that because the nearest infrastructure is a painted bike lane on Wellesley and Sherbourne's cycle track two and a half blocks away. That's not great cycling infrastructure.
Zero parking also means significantly more Uber and ride-hailing traffic than a typical building. Based on the plans, there's no accommodation for this. No cutouts, no dedicated pickup and dropoff areas, nothing. Those cars will idle on Maitland Street, blocking traffic and creating congestion. The transportation planner dismissed this as negligible "front door" traffic, but that's absurd for a 579-unit building with no parking.
The most egregious issue is how the developer is calculating density. They're using the lot of 440 Jarvis, which isn't being redeveloped, to inflate their allowable density, then building exclusively on the 110 and 114 Maitland parcels. That lot should be severed from this proposal to accurately reflect the buildable area and reduce the tower's allowable height.
The community consultation was a disaster. Councillor Moise didn't know the site location, fumbled basic details like whether a shadow study existed (it does, it's publicly available), and spent his closing remarks blaming Doug Ford and the Planning Act instead of pointing planners toward tools the city actually has, like asking hard questions about infrastructure capacity, and whether cramming 579 units with zero parking into an already-dense neighbourhood serves any broader planning goal.
The meeting's most dramatic moment came when a man stood up to support the development, claiming the housing crisis justified any new development. He insisted that he makes six figures but can't afford a place to live, arguing that "we need more homes" regardless of the specifics. He went on to say that even without parking, he'd move in anyway. The entire room immediately pushed back, pointing out that Toronto faces an affordability crisis, not a housing crisis, a distinction he refused to acknowledge, insisting "it's the same thing." His comments felt scripted and disconnected from the community's legitimate concerns.
Nicki Ward, who finished second to Councillor Moise in the 2022 Ward 13 city council race, told the man that he wasn't part of the community and needed to sit down. Moise then stood up and yelled something at Ward, and they had a brief verbal exchange.
I genuinely believe this man was a plant. His behavior was so extreme and his talking points so perfectly aligned with the developer's narrative that it felt orchestrated. No one organically shows up to a community meeting to argue that lack of infrastructure, cutting down trees, and eliminating parking don’t matter because they personally want a house.
The tension between Councillor Moise and Nicki Ward was unprofessional and unproductive. The lack of community education on how to participate effectively in these consultations is becoming more apparent every time I attend one. This results in residents' legitimate concerns, ones that could shape the development positively, getting drowned out by irrelevant resident complaints.





